descripción de propiedad
Ccio. San Pablo
🚩Ubicación: Av. Sarmiento y calle Ramon Franco. A tres cuadra de plaza departamental de Santa Lucia.
✅ Departamento a estrenar.
✅ Tercer piso acceso por ascensor. Full amoblado
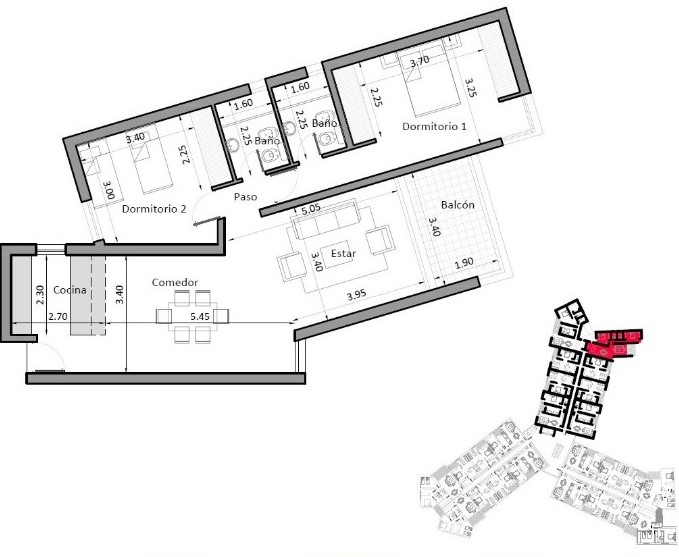
✅ Estar – Comedor amplio y luminoso con aire acondicionado .
✅ Cocina separada posee mueble de alacena, bajo mesada, cocina, purificador de aire y termotanque.
✅ Puerta ventana a amplio Balcón.
✅ 2 dormitorios, ambos con placard y aire acondicionado. Dormitorio principal con doble placard y baño en suite.
✅ Baño completo.
✅Posee cochera apta para camioneta.
✅ El Ccio. posee amenities:
– Tarbea equipada para 24 personas, con galeria, baños y parrillero.
– Piscina con solarium y jardin.
– Espacios verdes con materium.
🔺 EXPENSAS : $150.000 aprox.
Consultas y muestras al 4273535 o al 2644165960.
Mira el entorno en StreetView.




























































