descripción de propiedad
Ccio. San Pablo
🚩Ubicación: Av. Sarmiento y calle Ramon Franco. A tres cuadras de plaza departamental de Santa Lucía.
Opción sin cochera $ 650.000
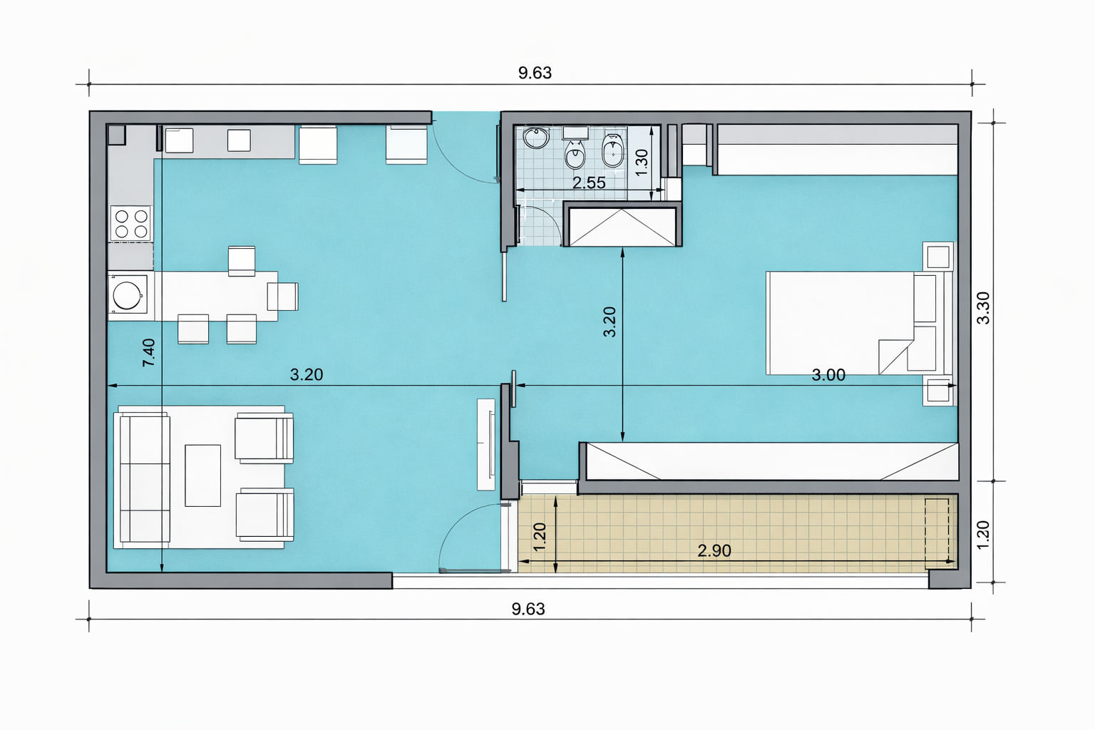
✅ Departamento a estrenar.
✅ Estar – Comedor muy luminoso con aire acondicionado.
✅ Cocina integrada en forma de «L», posee mueble de alacena, bajo mesada, termotanque, anafe de vitroceramica y purificador de aire.
✅ Puerta ventana a Balcón.
✅ 1 dormitorio con doble placard y aire acondicionado.
✅ Baño completo.
✅Posee cochera apta para camioneta.
✅ El Ccio. posee amenities:
– Tarbea equipada para 24 personas, con galeria, baños y parrillero.
– Piscina con solarium y jardin.
– Espacios verdes con materium.
🔺 EXPENSAS: $80.000 aprox.
Consultas y muestras al 4273535 o al 2644165960
Mirá el entorno en StreetView.
ID 28458







































































